Early Learning and Childcare Center
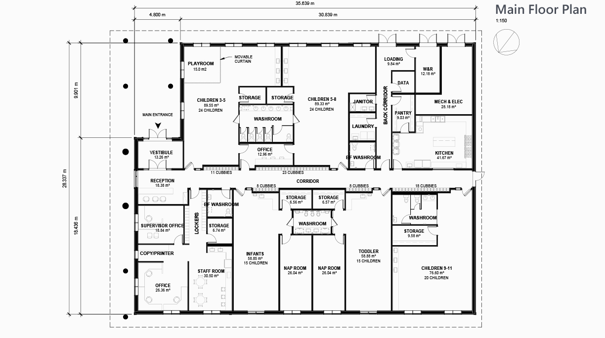
The SȾÁUTW̱ Education Department is excited to introduce our Early Learning Center, designed to support the childcare needs of the SȾÁUTW̱ First Nation and nearby areas. Our new centre will offer 94 childcare spaces, including programs for infants, toddlers, and school-aged children, alongside our Language Nest and Head Start program.
Our mission is to foster a strong sense of identity and lifelong learning in a healthy, safe environment. By promoting our SENĆOŦEN language and providing culturally rich programming, we aim to support our children’s development in all aspects of life. Located next to the Health Centre and the new Bighouse, this facility is more than a childcare centre; it’s a step towards healing and unity for our community.
We believe in empowering our families and community through inclusive and accessible education. The centre is designed to be fully accessible and inclusive, offering support for children with various abilities and ensuring everyone can participate.
Click an image for a larger view.






